Braybrook, West Melbourne
Client Homes VIC
Year 2025
Type Social Housing & Multi Residential
Scope Concept Design, DA, Documentation, Construction
Team Peter McGregor, Damien Madell, Finn Holle, Alice Knox, Meg Litherland and Li Zexun
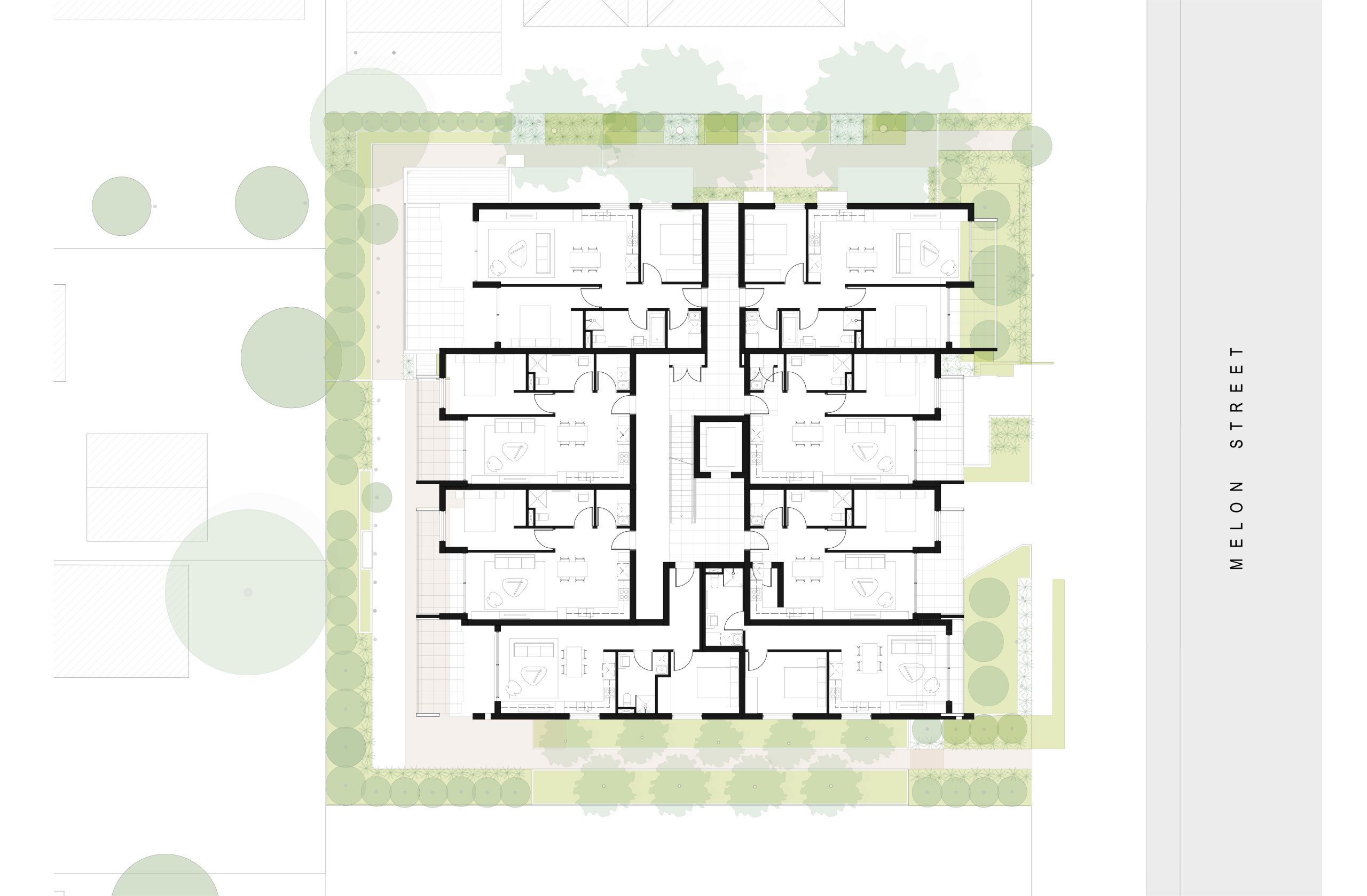
Our third social housing project for Homes Victoria has been approved. The proposed development comprises a three-storey building of 19 apartments over two lots on Melon Street in Braybrook. The site is part of a residential area featuring mainly single dwellings and newer, two-storey developments.
The proposed development takes advantage of the existing infrastructure network in Braybrook to provide much-needed housing. It enables opportunity for a variety of sectors of the Victorian community to find a home in a well-established area that is close to community, social and commercial services and infrastructure.
The building form is articulated into elements with the Melon Street façade modulated into three similarly-scale building elements to align with the scale and proportion of neighbouring dwellings. The neutral colours of the concrete and lightweight cladding complement the palette of the neighbours.
The building has been designed with a garden-led approach. Landscaping on all boundaries of the site facilitates a level of openness to the side and rear of the site and provides a pleasing aspect to the street. All street trees will be retained in order to maintain the existing streetscape, and carparking will be contained under the building form. The overall garden area is approximately 36.6% of the site.
Common areas and shared corridors have ventilation and natural light. A full-height window is provided at the north end of each corridor, and a skylight is provided on level two. The open space areas are well-oriented, of a useable size and will have morning or afternoon sun.




